本社工場
配置図
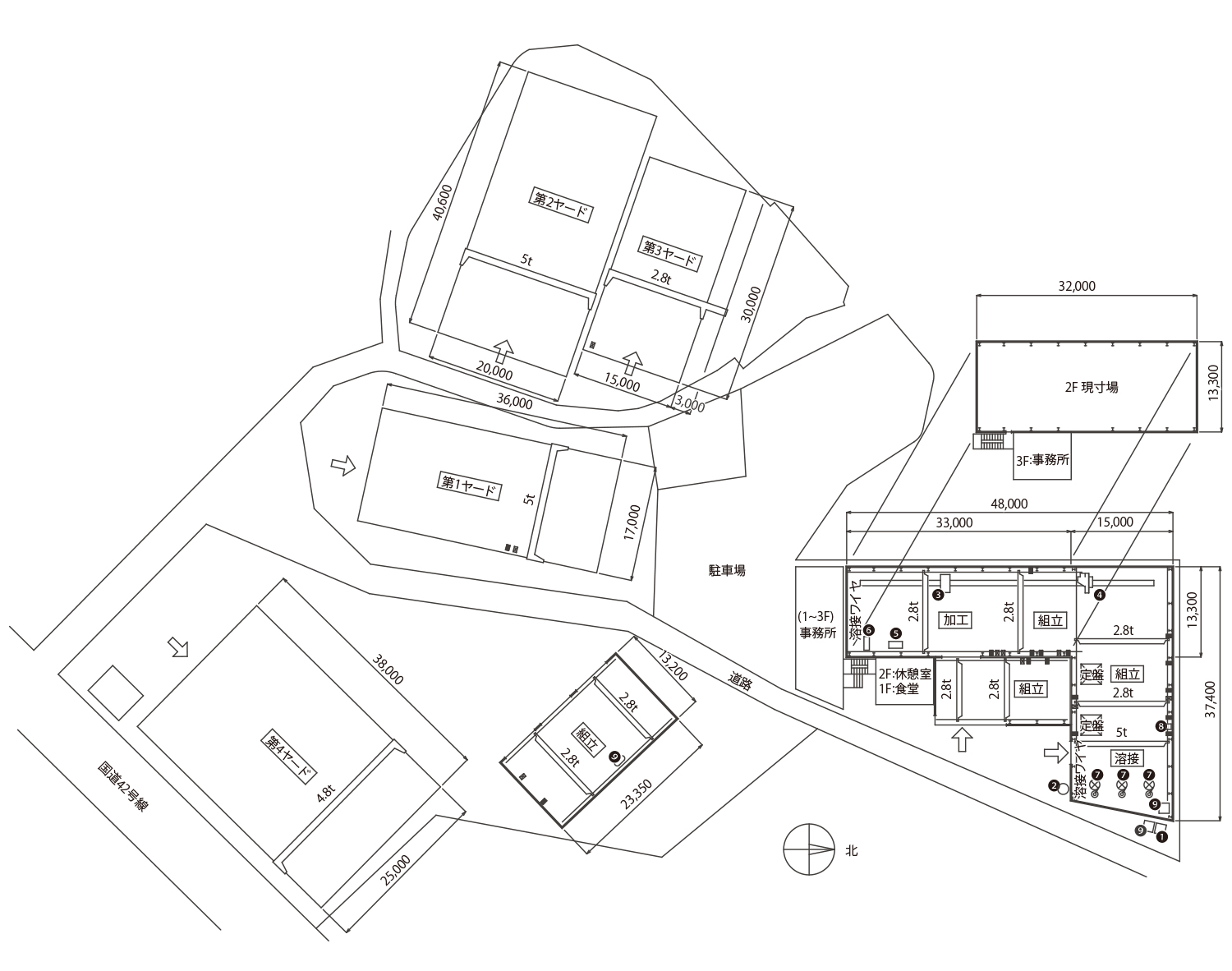
工場概要
| 敷地面積 | 8,751㎡ |
|---|---|
| 事務所面積 | 879㎡ |
| 工場面積 | 2,070㎡ |
| 現寸場面積 | 425㎡ |
| 第1ヤード | 612㎡ |
| 第2ヤード | 800㎡ |
| 第3ヤード | 540㎡ |
| 第4ヤード | 950㎡ |
| 受電設備 | 185KVA |
| 受電々力 | 150KW |
主要機器設備
| 1 | 受電設備 |
|---|---|
| 2 | 炭酸ガスタンク |
| 3 | NCドリルマシーン(6BH1000) |
| 4 | バンドソー(切断巾1000) |
| 5 | 開先加工機(鋼板用) |
| 6 | ドリルマシーン(鋼板用) |
| 7 | 柱コア用溶接ロボット(3台) |
| 8 | 溶接棒乾燥機 |
| 9 | コンプレッサー(3台) |
| ■ | CO2半自動溶接機(16台) |
| ⏻ | アーク溶接機(9台) |
クレーン設備
| ●工場 | 2.8t天井クレーン (6台) 5t天井クレーン (1台) |
|---|---|
| ●第1・2ヤード | 5t門型クレーン (各1台) |
| ●第3ヤード | 2.8t門型クレーン (1台) |
| ●第4ヤード | 4.8t門型クレーン (1台) 2.8t天井クレーン (2台) |

